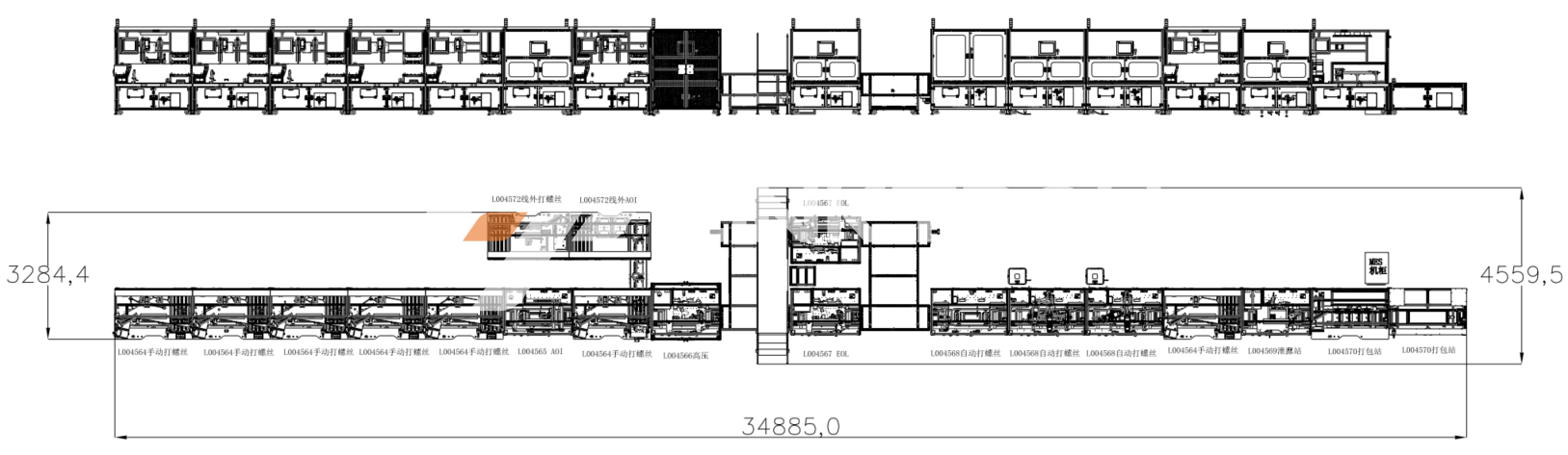
电源分配单元(BDU)是新能源车辆电气系统中的关键组成部分,负责高效、安全地管理和分配高压电能至车辆的不同用电设备。PDU通过先进的母线和线束连接技术,实现对高压电池存储能量的精准控制,为电动驱动系统、空调压缩机、加热装置以及其他高功率需求部件提供稳定的电力供应。同时还具备包括充放电控制、高压设备的上电管理、电路过载和短路防护、高压状态监测等功能。
公司针对客户不同BDU产品需求,提供了包括装配和测试在内的多样化工艺解决方案。




电源分配单元(BDU)是新能源车辆电气系统中的关键组成部分,负责高效、安全地管理和分配高压电能至车辆的不同用电设备。PDU通过先进的母线和线束连接技术,实现对高压电池存储能量的精准控制,为电动驱动系统、空调压缩机、加热装置以及其他高功率需求部件提供稳定的电力供应。同时还具备包括充放电控制、高压设备的上电管理、电路过载和短路防护、高压状态监测等功能。
公司针对客户不同BDU产品需求,提供了包括装配和测试在内的多样化工艺解决方案。
您可以在我们的资料库中获取更多关于检测设备的信息。